Ankara Beytepe Equestrian Sports Complex

Ankara, Türkiye
A Timber Landmark for Equestrian Culture and Public Gatherings
Project Type Cultural & Sport
Location Ankara, Türkiye
Year 2023
Project Service Concept Project
Project Status Concept Project
Employer Ministry of Environment, Urbanisation and Climate Change

The Ankara Beytepe Equestrian Sports Complex redefines the relationship between architecture, natural landscape, and multi programmed public functions. Situated in a low density, green region in proximity to major university campuses, the project is conceived as a social and athletic landmark that embraces the site’s natural slope, while celebrating the materiality of wood in every construction detail.

Material Expression and Structural Integrity

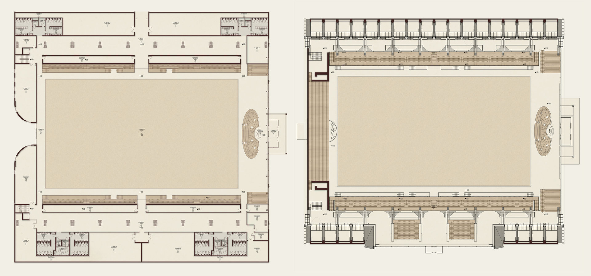
One of the most defining features of the complex is its exclusive use of timber for all structural systems, joints, and spatial enclosures. This design decision ensures low environmental impact, enhances thermal and acoustic comfort, and provides a warm, natural architectural expression across indoor and outdoor programs. The wide span CLT (Cross Laminated Timber) system enables uninterrupted volumes for major equestrian events and exhibitions, while simultaneously transforming the arena into a versatile stage for large scale performances, such as air shows.

Topography-Responsive Design

The project capitalizes on the natural topography of the site by designing tiered landscape terraces, each programmed with specific uses such as playgrounds, seating areas, cafes, sports courts, and event zones. These levels are interconnected with soft circulation paths, offering users a seamless spatial experience while framing expansive views of the central arena and natural environment.

Programmatic Diversity and Flexibility

Far beyond a sports complex, the design integrates an array of flexible use spaces that serve a diverse set of functions:
• Equestrian Activities: Dedicated tracks and arenas for horse training, events, and national competitions.
• Multi-Use Performance Venues: Adaptable indoor/outdoor spaces for concerts, shows, fairs, and international festivals.
• Seminar and Meeting Halls: Enclosed venues that can be tailored to formal events or converted into intimate gathering spaces.
• Exhibition Grounds: Fair zones that allow for showcasing innovations in agriculture, industry, and automotive technologies.
• Children’s and Public Areas: Playgrounds and recreation spaces that support everyday use and community well-being.

A Public Infrastructure Rooted in Nature

By promoting walkability, offering multiple access routes, and retaining visual connectivity to the surrounding landscape, the project fosters active and inclusive public engagement. As a timber structured, multi functional civic platform that adapts to national and international event calendars, the Ankara Beytepe Equestrian Sports Complex embodies a forward thinking, sustainable approach to regional development.