Cityist Piyalepaşa Office

İstanbul, Türkiye
A Distinct Presence on the Slope: A Transparent Office Block Along Piyalepaşa Boulevard
Project Type Office & Sales Office
Location İstanbul, Türkiye
Year 2016
Project Service Concept to Construction
Project Status Completed
Total Area (m²) 16000.00
Employer Meydanbey

Located in the heart of Beyoğlu, Istanbul—at the intersection of Piyalepaşa Boulevard and Derebostan Street—the project is strategically positioned next to Ofton Next Plaza. As one of the key corridors connecting Beyoğlu and Şişli, Piyalepaşa Boulevard has evolved into a significant urban center, attracting high-profile projects due to its proximity to main arteries (E5 and E6) and recent urban improvements.

The project aims to create a landmark structure that is clearly visible from both Piyalepaşa and Eski Büyükdere Avenues. Its design maximizes visibility and engagement by orienting the primary façades towards the east and north elevated directions due to the sloping topography of the area. This elevation makes the building highly legible within the urban silhouette, while the green recreation zone to the north strengthens the visual and spatial connection with the historic Piyalepaşa Mosque.

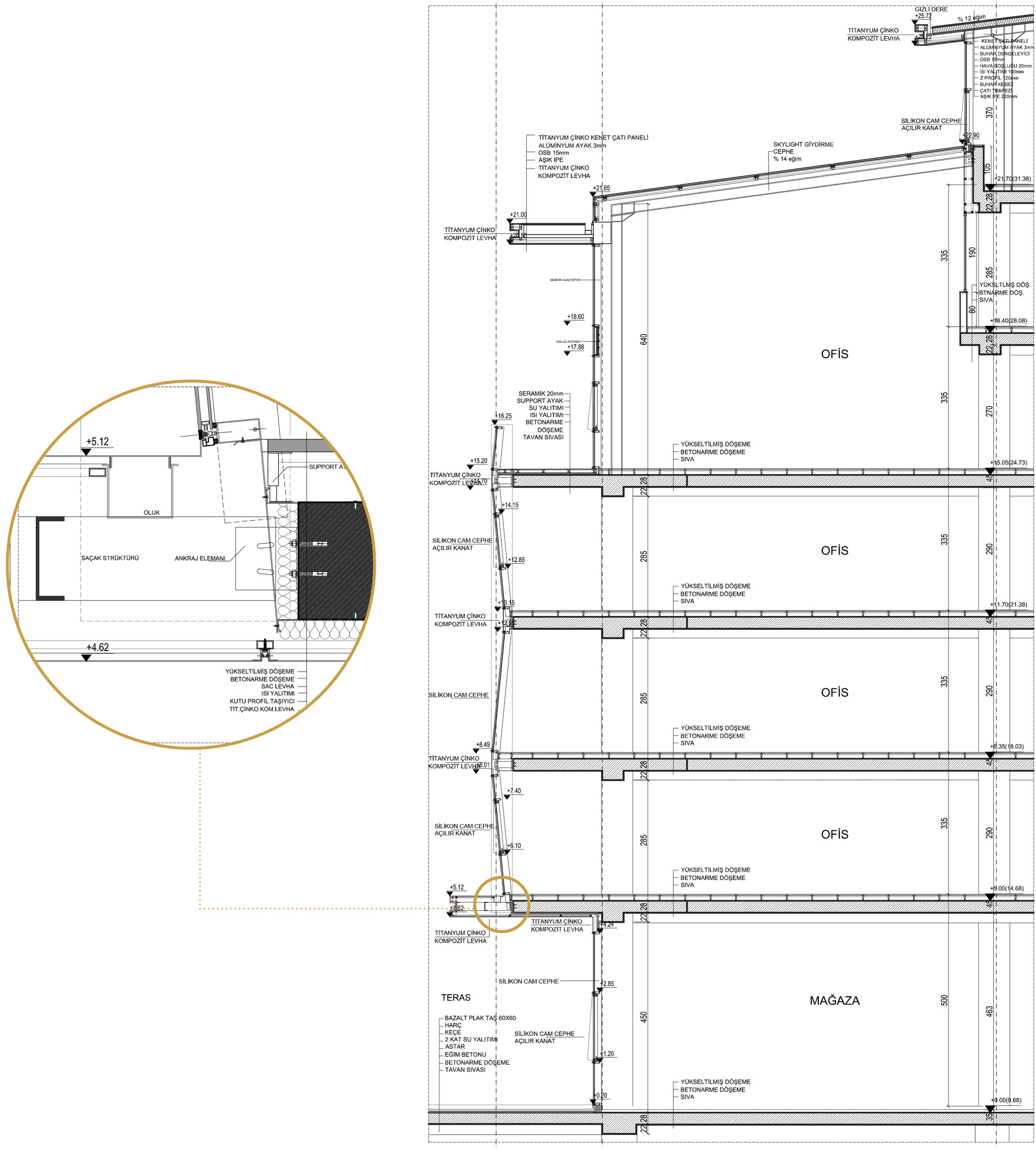
Sitting on a 2,445 m² plot with a total construction area of 14,643 m², the building is planned with six stories and an attic floor in compliance with local regulations. The ground floor features two retail units with independent street access, while the main office entrance is positioned along Derebostan Street to optimize frontage usage along the boulevard. Flexible office modules of various sizes are located on the upper levels, with raised flooring systems to accommodate alternative fit out options. The ground floor has a generous height of 5.5 meters, and each office floor maintains a height of 3.15 meters.

To enhance user comfort, office gardens have been introduced throughout the upper floors most notably on the 4th floor, which features a “garden-office” concept. This semi-open green space is visually connected to the 5th and 6th floors through a dramatic glass roof, fostering daylight and vertical interaction across levels.

The façade design embodies a dual-layer approach: a transparent glass skin allows users to visually engage with the urban rhythm, while a second architectural layer envelops the primary volume providing shade, articulation, and visual dynamism. This strategy transforms the building into a breathing entity that reflects the city’s vibrancy while offering calm, functional interiors for working life.