Kemal Koçak Steakhouse

Kayseri, Türkiye
A Contemporary Interpretation of Local Heritage: Restaurant Project on Erciyes Road
Project Type Hospitality
Location Kayseri, Türkiye
Year 2012
Project Service Concept Project
Project Status Completed
Total Area (m²) 1500.00
Total Construction Area (m²) 2500.00
Employer Kemal Koçak

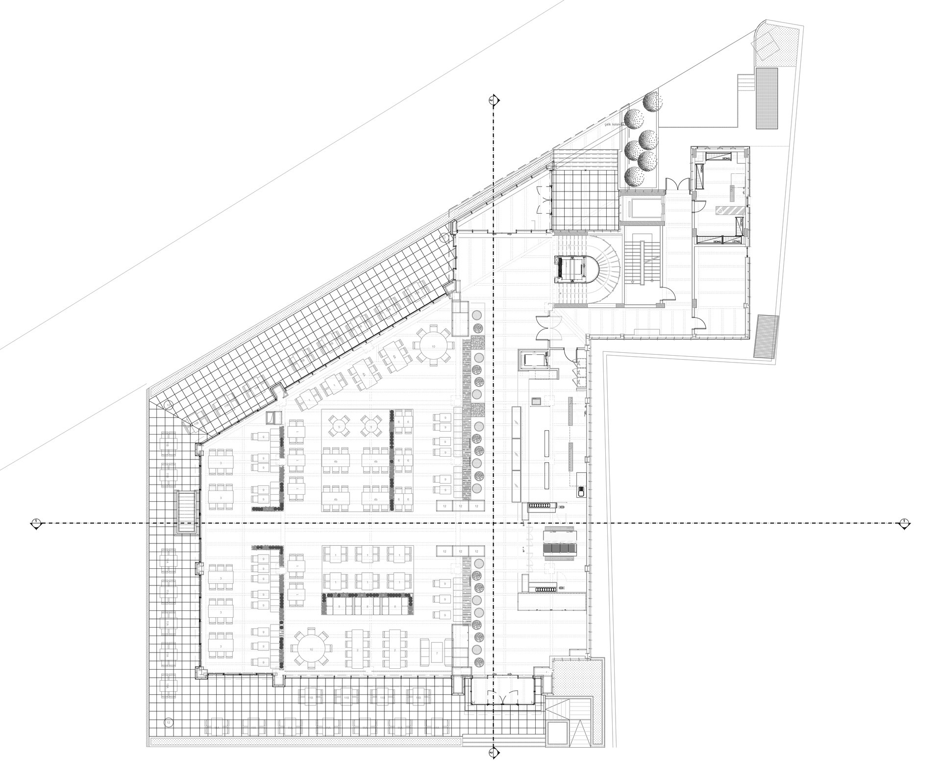
Located opposite the planned new city park on Kayseri–Erciyes Road, this restaurant project draws inspiration from the city’s architectural heritage. Local motifs, colonnades, and ornamental elements from Kayseri’s historic buildings have been reinterpreted through a contemporary lens. The spatial continuity between interior and exterior is achieved via transparent surfaces and adaptable partition elements.

The design is enriched with ceramic and timber flooring, custom lighting fixtures, and refined detailing. Solid wood tables paired with metal legs are complemented by CNC cut dividers, ceiling-mounted shelving, and metal framing systems. Seasonal flexibility is ensured through spatial components that allow integration with the outdoor area, resulting in a modern yet locally grounded dining experience.